Downtown Austin Custom Home + ADU on a Compact Urban Lot

Urban Custom Home + ADU

This custom residential project showcases what is possible when thoughtful design, precise planning, and experienced construction come together on a challenging urban site in Austin.

Built on a narrow downtown lot, this project involved the custom construction of two independent residences on a single property: a three-story primary home and a fully equipped accessory dwelling unit (ADU) located at the rear of the lot. What was once a single-home property was transformed into a highly functional, modern multi-structure build that maximizes space while fully complying with Austin’s strict zoning, environmental, and permitting requirements.

Building in downtown Austin presents unique challenges, including tight site access, environmental regulations, and an extensive permitting process. This project required careful coordination and approval for two separate dwellings on one lot, along with meticulous adherence to city development and environmental guidelines. Our team navigated these complexities from concept through completion, ensuring both homes met code, respected the surrounding neighborhood, and delivered exceptional livability.

The primary custom home spans three levels, offering a flexible and modern layout designed for urban living. The second floor features an open den area that functions as a secondary living space, while the expansive third floor offers versatility to serve as a guest suite, media room, game room, or creative studio. Throughout the home, custom cabinetry, engineered hardwood flooring, and quartz countertops provide a cohesive, elevated finish, while built-in nooks add both functionality and architectural interest.

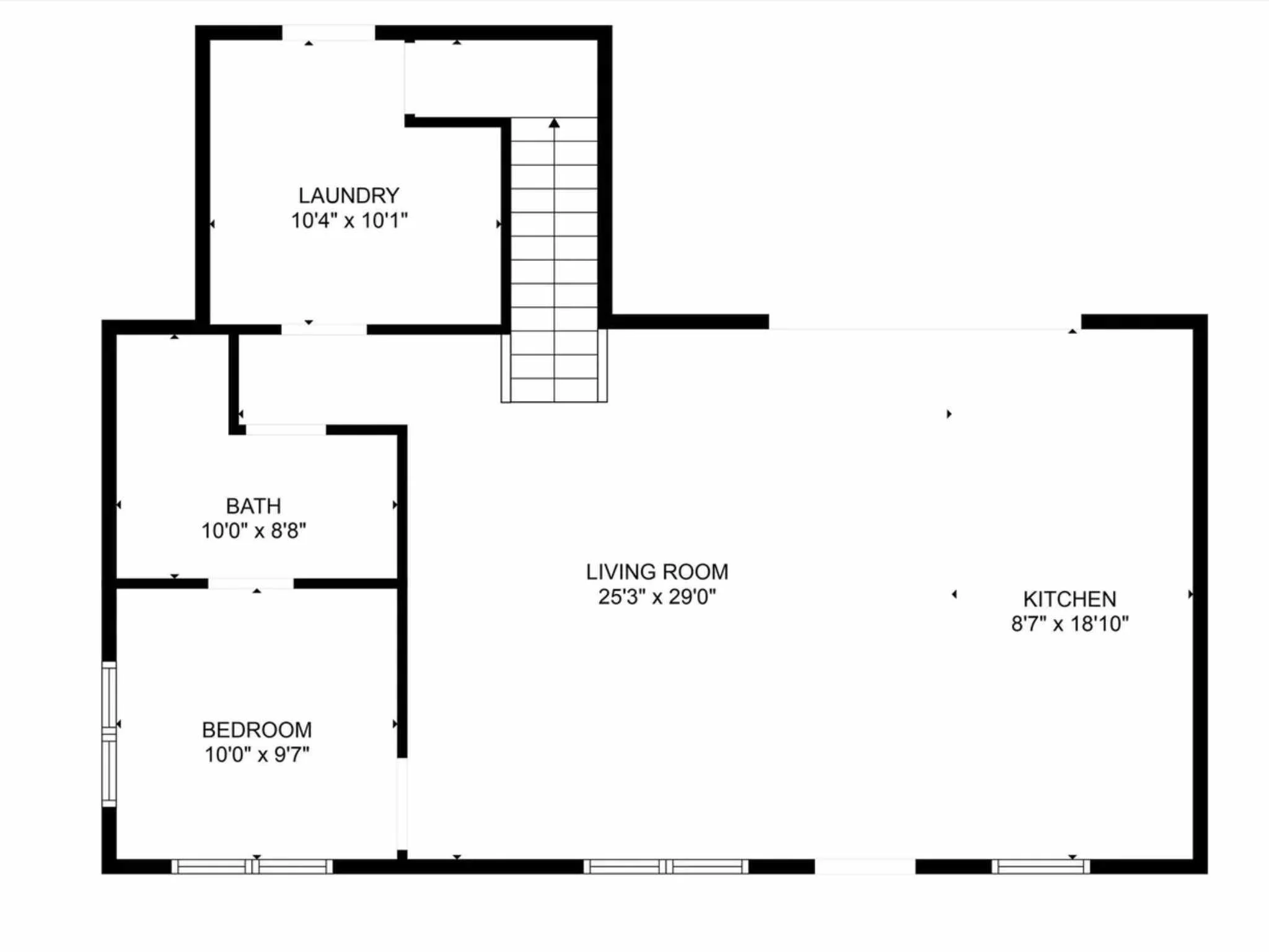
The rear ADU, though smaller in footprint, was designed to feel spacious and intentional. An open-concept kitchen anchors the main living space, highlighted by a modern black-and-white backsplash that adds visual interest without overwhelming the design. The second-floor bedroom includes a well-appointed bathroom featuring a shower paired with a soaker tub, creating a comfortable and refined retreat.

Together, these two homes demonstrate how thoughtful design and expert execution can unlock the full potential of a compact urban lot. This project is a strong example of our ability to deliver custom homes, ADUs, and complex builds in high-regulation areas like downtown Austin, without sacrificing craftsmanship, comfort, or design integrity

Previous
Previous

Starting Over